Informații Utile

Acasă / Informații Utile

Informații Utile

Tot ce trebuie să știi !



Ce este certificarea EN ISO 3834?



• Standardul ISO 3834 – “Cerinţe de calitate pentru sudarea prin topirea materialelor metalice” ne ajuta sa gestionam corect procesul de fabricatie prin sudare, pentru a putea controla si respecta procesele de fabricatie si calitatea produselor, atat in halele de productie cat si pe santiere, pentru orice tip de constructie sudata.
• Standardul EN ISO 3834 se poate integra in standardul EN ISO 9001 ca si „proces special sudura".
• Certificarea conform EN ISO 3834 este valabila 3 ani cu conditia efectuarii auditurilor anuale de supraveghere.
• Un avantaj pentru certificarea în baza standardului EN ISO 3834 il constituie un coordonator al sudarii certificat IWE/EWE.
Părţile care se certifica conform EN ISO 3834 sunt:
• EN ISO 3834-2 (cerinţe de calitate extinse)
• EN ISO 3834-3 (cerinţe de calitate normale)
• EN ISO 3834-4 (cerinţe de calitate elementare).


Ce este certificarea EN 1090?



• Certificarea EN 1090 reprezintă permisiunea aplicării marcajului "CE" pe structurile sudate, conform SR EN 1090-1+A1:2012
Sitemul 2+ al "Controlului Productiei In Fabrica (CPF)" pentru:
• SR EN 1090-1+A1:2012 - Execuţia structurilor de oţel şi structurilor de aluminiu. Partea 1: Cerinţe pentru evaluarea conformităţii elementelor structurale.
• SR EN 1090-2:2018 - Execuţia structurilor de oţel şi structurilor de aluminiu. Partea 2: Cerinţe tehnice pentru structuri de oţel.
• SR EN 1090-3:2019 - Executarea structurilor de oțel și structurilor de aluminiu. Partea 3: Cerințe tehnice pentru executarea structurilor de aluminiu.


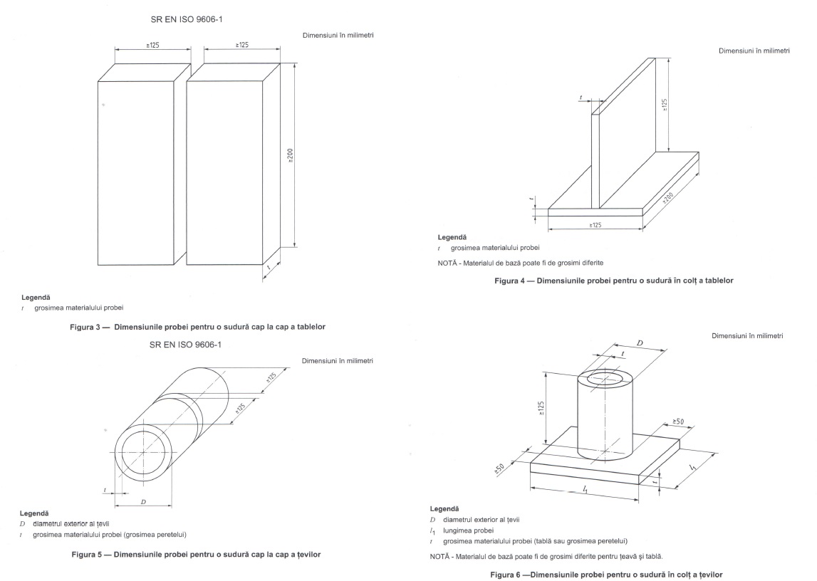
Dimensiuni probe certificare sudori





Dimensiuni probe calificare proceduri de sudare (WPQR)